Vonkajšie žalúzie na mieru s montážou
Exteriérové žalúzie pre moderné tienenie okien
Hliníkové vonkajšie žalúzie patria medzi najúčinnejšie riešenia tienenia okien. Poskytujú reguláciu svetla, ochranu pred prehrievaním a dostatok súkromia. Zároveň pomáhajú znižovať náklady na energie počas celého roka. Ich cena závisí od typu, rozmerov a spôsobu ovládania. Preto vám radi pripravíme riešenie na mieru presne podľa vašich požiadaviek. Okrem toho sú moderné exteriérové žalúzie ideálnou voľbou pre rodinné domy, byty aj komerčné budovy, kde spájajú funkčnosť s elegantným dizajnom.
⭐⭐⭐ NAJPREDÁVANEJŠIA
lamela Z 90
Najpredávanejšie vonkajšie žalúzie pre prémiové tienenie
Tento typ žalúzií patrí medzi naše najpredávanejšie a najobľúbenejšie riešenia exteriérového tienenia. Vďaka Z-lamelám poskytujú výborné zatemnenie, vysokú stabilitu vo vetre a účinnú ochranu pred prehrievaním interiéru. Z90 žalúzie sú ideálnou voľbou ako pre rodinné domy, veľké presklené plochy moderných novostavieb tak aj pre byty a kancelárie.
Dostupné prevedenia
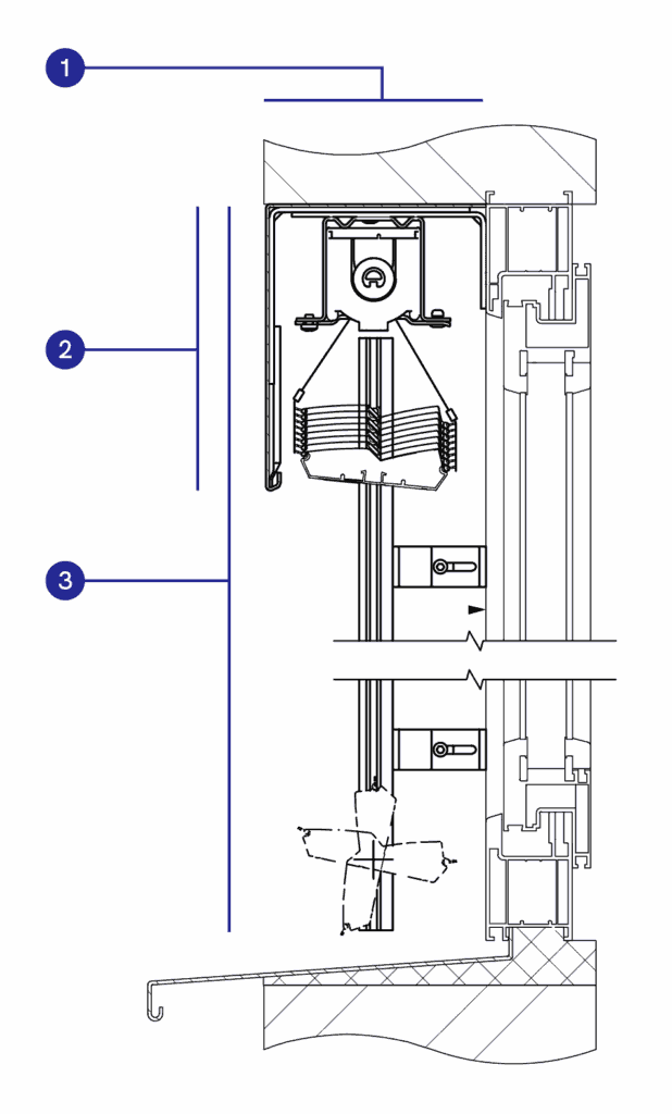
Legenda k nákresu:
- minimálny vnútorný priestor pre žalúziu 130 mm (odporúčané)
- výška paketu 1 80 – 360 mm
| Žalúzia Z-90 | Kľuka | Motor |
| Šírka žalúzie (mm) | 400 – 5 000 | 600 – 5 000 |
| Výška žalúzie (mm) | 500 – 5 000 | 500 – 5 000 |
| Maximálna plocha žalúzie (m2) | 9 m2 | 20 |
| Odolnosť proti vetru | až 88 km/h, až trieda 6 | až 88 km/h, až trieda 6 |
Skryté osadenie pod fasádu
Montéri žalúziu umiestnia do pripraveného priestoru vo fasáde. Všetky kotviace prvky sú tak skryté a nič neruší finálny vzhľad budovy. Tento spôsob prevedenia je vizuálne najatraktívnejší.
Osadenie priamo na fasádu
Ak technológia stavby nedovoľuje montáž pod fasádu alebo krycí plech, tak sa žalúzie montujú pomocou špeciálnych nosných prvkov priamo na fasádu. Takto namontované žalúzie tvoria zaujímavý architektonický prvok.
Riešenie s krycím plechom
Priznaný lakovaný plech zakrýva horný profil a paket lamiel žalúzií a chráni žalúzie pred nepriaznivým počasím. Tento spôsob prevedenia je vhodný pre dodatočnú montáž, prípadne ak sa žalúzia nevlezie pod fasádu, alebo má klient rád estetiku plechu.
Vonkajšie žalúzie Z90 ponúkajú vyšší stupeň zatemnenia, presnú reguláciu svetla a účinnú ochranu pred prehrievaním interiéru. Vynikajú moderným dizajnom, tichým chodom a vysokou stabilitou aj pri vetre.
- Z90 žalúzie majú tvar lamiel „Z“, výborne dosadajú jednotlivé lamely do seba a tým poskytujú vyšší stupeň zatemnenia
- S90 žalúzie majú tvar lamiel „S“ sú funkčne rovnaké ako Z90, ale elegantnejšie a vhodné pre dizajnovo orientované riešenia
Hliníkové Z90 žalúzie sú nenáročné na údržbu a pri správnom používaní majú dlhú životnosť. Stačí bežné čistenie a pravidelná kontrola mechanizmov.
lamela S 90
Maximálne tienenie, tichý chod a vysoká odolnosť
Typ lamely S90 patrí medzi vydarené estetické riešenia exteriérového tienenia. Vďaka domykateľným lamelám poskytujú výborné zatemnenie, účinnú ochranu pred prehrievaním interiéru a vyšší komfort bývania. S90 žalúzie vynikajú tichým chodom, pevnosťou a moderným dizajnom, vďaka čomu sú ideálnou voľbou pre rodinné domy aj náročnejšie projekty.
Dostupné prevedenia

Legenda k nákresu:
- minimálny vnútorný priestor pre žalúziu 130 mm (odporúčané)
- výška paketu 1 80 – 360 mm
| Žalúzia S-90 | Kľuka | Motor |
| Šírka žalúzie (mm) | 400 – 5 000 | 600 – 5 000 |
| Výška žalúzie (mm) | 500 – 5 000 | 500 – 5 000 |
| Maximálna plocha žalúzie (m2) | 9 m2 | 20 |
| Odolnosť proti vetru | až 88 km/h, až trieda 6 | až 88 km/h, až trieda 6 |
Skryté osadenie pod fasádu
Montéri žalúziu umiestnia do pripraveného priestoru vo fasáde. Všetky kotviace prvky sú tak skryté a nič neruší finálny vzhľad budovy. Tento spôsob prevedenia je vizuálne najatraktívnejší.
Osadenie priamo na fasádu
Ak technológia stavby nedovoľuje montáž pod fasádu alebo krycí plech, tak sa žalúzie montujú pomocou špeciálnych nosných prvkov priamo na fasádu. Takto namontované žalúzie tvoria zaujímavý architektonický prvok.
Riešenie s krycím plechom
Priznaný lakovaný plech zakrýva horný profil a paket lamiel žalúzií a chráni žalúzie pred nepriaznivým počasím. Tento spôsob prevedenia je vhodný pre dodatočnú montáž, prípadne ak sa žalúzia nevlezie pod fasádu, alebo má klient rád estetiku plechu.
• vysoká odolnosť lamely so zaobleným prelisom
• účinná ochrana pred prehrievaním
• výborné zatemnenie a súkromie
• tichý chod a moderný dizajn
• úspora energií
S90 vonkajšie žalúzie sú vhodné pre rodinné domy, novostavby, pasívne domy, byty aj administratívne budovy. Využívajú sa tam, kde je dôraz na efektívne tienenie s dôrazom na dizajn a komfort.
Hliníkové S90 žalúzie sú nenáročné na údržbu a pri správnom používaní majú dlhú životnosť. Stačí bežné čistenie a pravidelná kontrola mechanizmov.
Novinka
lamela Z 70
Elegantné a flexibilné riešenie
Príjemne tiché žalúzie, ktoré sa skvele hodia i do menších izieb s malými oknami. Oproti Z-90 majú Z-70 viac lamiel, ktoré sú však užšie a veľmi elegantné. Vďaka menšej šírke lamiel sa hodia aj do užších priestorov vo fasáde.
Dostupné prevedenia
Obsah accordion
TYP VEDENIA: VODIACE PROFILY
| Žalúzia Z-70 | Kľuka | Motor |
| Šírka žalúzie (mm) | 400 – 5 000 | 600 – 5 000 |
| Výška žalúzie (mm) | 500 – 5 000 | 500 – 5 000 |
| Maximálna plocha žalúzie (m2) | 9 m2 | 20 |
| Odolnosť proti vetru | až 88 km/h, až trieda 6 | až 88 km/h, až trieda 6 |
Typ vedenia: LANKO
| Žalúzia Z-70 | Kľuka | Motor |
| Šírka žalúzie (mm) | 400 – 4000 | 600 – 4000 |
| Výška žalúzie (mm) | 500 – 4 000 | 500 – 4000 |
| Maximálna plocha žalúzie (m2) | 9 m2 | 16 |
| Odolnosť proti vetru | až 49 km/h, až trieda 3 | až 49 km/h, až trieda 3 |
Skryté osadenie pod fasádu
Montéri žalúziu umiestnia do pripraveného priestoru vo fasáde. Všetky kotviace prvky sú tak skryté a nič neruší finálny vzhľad budovy. Tento spôsob prevedenia je vizuálne najatraktívnejší.
Osadenie priamo na fasádu
Ak technológia stavby nedovoľuje montáž pod fasádu alebo krycí plech, tak sa žalúzie montujú pomocou špeciálnych nosných prvkov priamo na fasádu. Takto namontované žalúzie tvoria zaujímavý architektonický prvok.
Riešenie s krycím plechom
Priznaný lakovaný plech zakrýva horný profil a paket lamiel žalúzií a chráni žalúzie pred nepriaznivým počasím. Tento spôsob prevedenia je vhodný pre dodatočnú montáž, prípadne ak sa žalúzia nevlezie pod fasádu, alebo má klient rád estetiku plechu.
VEDELI STE, ŽE...
Naše vonkajšie žalúzie môžete ovládať manuálne kľukou, elektrickým motorom, prípadne solárne žalúzie bez nutnosti elektrického napájania, tiež ich môžete pripojiť na Smart Home, aby sa nastavovali sami podľa vašich potrieb.
Ochrana pred prehrievaním
Vonkajšie hliníkové žalúzie patria medzi najefektívnejšie riešenia moderného tienenia okien. Umožňujú plynulú reguláciu denného svetla, chránia interiér pred prehrievaním a zvyšujú komfort bývania počas celého roka. Kvalitné exteriérové žalúzie dokážu výrazne obmedziť prehrievanie miestností v letných mesiacoch, znížiť potrebu klimatizácie a prispieť k dlhodobým energetickým úsporám.
Úspora energie a vyšší komfort
Vďaka nastaviteľným lamelám poskytujú vonkajšie žalúzie na okná presnú kontrolu nad svetlom, zabezpečujú súkromie a zároveň prepúšťajú dostatok prirodzeného osvetlenia. Sú ideálnym riešením nielen pre rodinné domy a novostavby, ale aj pre byty a bytové domy, kde pomáhajú výrazne zlepšiť tepelnú pohodu, eliminovať prehrievanie a zvýšiť celkový komfort bývania najmä počas horúcich letných dní. Exteriérové žalúzie zachytávajú slnečné lúče ešte pred sklom, čím sú výrazne účinnejšie než interiérové tienenie. Pomáhajú tak znižovať náklady na chladenie, stabilizovať vnútornú teplotu a vytvárať príjemnejšie prostredie pre bývanie aj prácu. Preto patria medzi najvyhľadávanejšie riešenia moderného vonkajšieho tienenia. Hliníkové vonkajšie žalúzie vynikajú dlhou životnosťou, odolnosťou voči poveternostným podmienkam a minimálnymi nárokmi na údržbu. Sú dostupné v rôznych typoch a dizajnoch, vďaka čomu sa prispôsobia každému projektu – od bytov až po veľké komerčné budovy.
Ak hľadáte spoľahlivé vonkajšie žalúzie na mieru, získate moderné tienenie, ochranu pred slnkom, viac súkromia a dlhodobé riešenie pre komfortnejšie a úspornejšie bývanie.
lamela C 80
Dajú sa sklopiť na obe strany
Tvar žalúzie C umožňuje vďaka možnosti preklápania lamiel na obe strany presne regulovať tienenie a pustiť domov len toľko slnečných lúčov, koľko kto chce. Oproti C-65 majú C-80 robustnejšie lamely a zatienia väčšiu plochu.
Dostupné prevedenia
Typ vedenia: VODIACE PROFILY
| Žalúzia C-80 | Kľuka | Motor |
| Šírka žalúzie (mm) | 400 – 5 000 | 600 – 5 000 |
| Výška žalúzie (mm) | 500 – 5 000 | 500 – 5 000 |
| Maximálna plocha žalúzie (m2) | 9 m2 | 20 |
| Odolnosť proti vetru | až 74 km/h, až trieda 5 | až 74 km/h, až trieda 5 |
Typ vedenia: LANKO
| Žalúzia C-80 | Kľuka | Motor |
| Šírka žalúzie (mm) | 400 – 4000 | 600 – 4000 |
| Výška žalúzie (mm) | 500 – 4 000 | 500 – 4000 |
| Maximálna plocha žalúzie (m2) | 9 m2 | 16 |
| Odolnosť proti vetru | až 49 km/h, až trieda 3 | až 49 km/h, až trieda 3 |
Skryté osadenie pod fasádu
Montéri žalúziu umiestnia do pripraveného priestoru vo fasáde. Všetky kotviace prvky sú tak skryté a nič neruší finálny vzhľad budovy. Tento spôsob prevedenia je vizuálne najatraktívnejší.
Osadenie priamo na fasádu
Ak technológia stavby nedovoľuje montáž pod fasádu alebo krycí plech, tak sa žalúzie montujú pomocou špeciálnych nosných prvkov priamo na fasádu. Takto namontované žalúzie tvoria zaujímavý architektonický prvok.
Riešenie s krycím plechom
Priznaný lakovaný plech zakrýva horný profil a paket lamiel žalúzií a chráni žalúzie pred nepriaznivým počasím. Tento spôsob prevedenia je vhodný pre dodatočnú montáž, prípadne ak sa žalúzia nevlezie pod fasádu, alebo má klient rád estetiku plechu.
lamela F 80
Šetria priestor, sklopíte na obe strany
Vďaka svojmu elegantnému vzhľadu a tým, že neuberajú na svetlej výške okna, patria F-80 medzi obľúbený typ vonkajších žalúzií pre domácnosti i administratívne budovy. Majú plochý tvar s nízkym paketom a sklopíte ich na obe strany.
Dostupné prevedenia
TYP VEDENIA: VODIACE PROFILY
| Žalúzia F-80 | Kľuka | Motor |
| Šírka žalúzie (mm) | 400 – 4000 | 600 – 4000 |
| Výška žalúzie (mm) | 500 – 4 000 | 500 – 4000 |
| Maximálna plocha žalúzie (m2) | 9 m2 | 16 m2 |
| Odolnosť proti vetru | až 61 km/h, až trieda 5 | až 61 km/h, až trieda 5 |
TYP VEDENIA: LANKO
| Žalúzia F-80 | Kľuka | Motor |
| Šírka žalúzie (mm) | 400 – 4000 | 600 – 4000 |
| Výška žalúzie (mm) | 500 – 4 000 | 500 – 4000 |
| Maximálna plocha žalúzie (m2) | 9 m2 | 16 m2 |
| Odolnosť proti vetru | až 38 km/h, až trieda 2 | až 38 km/h, až trieda 2 |
Skryté osadenie pod fasádu
Montéri žalúziu umiestnia do pripraveného priestoru vo fasáde. Všetky kotviace prvky sú tak skryté a nič neruší finálny vzhľad budovy. Tento spôsob prevedenia je vizuálne najatraktívnejší.
Osadenie priamo na fasádu
Ak technológia stavby nedovoľuje montáž pod fasádu alebo krycí plech, tak sa žalúzie montujú pomocou špeciálnych nosných prvkov priamo na fasádu. Takto namontované žalúzie tvoria zaujímavý architektonický prvok.
Riešenie s krycím plechom
Priznaný lakovaný plech zakrýva horný profil a paket lamiel žalúzií a chráni žalúzie pred nepriaznivým počasím. Tento spôsob prevedenia je vhodný pre dodatočnú montáž, prípadne ak sa žalúzia nevlezie pod fasádu, alebo má klient rád estetiku plechu.
ODPORÚČAME
Doplnky a príslušenstvo
KRYCIE PLECHY A DRŽIAKY
KRYCIE PLECHY A DRŽIAKY
PODOMIETKOVÝ KASTLÍK
PODOMIETKOVÝ KASTLÍK
TERMOIZOLAČNÉ SENDVIČOVÉ DOSKY
TERMOIZOLAČNÉ SENDVIČOVÉ DOSKY
ISO-PANEL
ISO-PANEL




